吊り具のメーカー日成エンジニアリングでは、吊り治具の設計製作を行っております。
吊り具のメーカー日成エンジニアリングでは、
吊り治具の設計製作を行っております。
製品案内
会社案内
新着情報
採用情報
お問い合わせ
製品案内
製品カテゴリから探す
運搬・積み下ろし
運搬・積み下ろし
施工・工具
施工・工具
天秤・吊り天秤他
天秤・吊り天秤他
フォークリフト吊り具他
フォークリフト吊り具他
脱型・場内移動・製造
脱型・場内移動・製造
反転機・反転作業
反転機・反転作業
剥離剤塗布・清掃
剥離剤塗布・清掃
その他の製品・特注品
その他の製品・特注品
製品一覧
その他
会社案内
新着情報
採用情報
お問い合わせ
プライバシーポリシー
製品案内
ホーム
製品案内
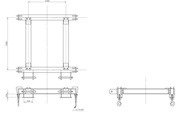
吊り天秤 LF-18-4(4点吊り)
重量物のバランス吊に優れた作業性を発揮します。
回転フックにより、取り付け取り外しが可能です。フォークリフトアタッチメット
吊り天秤LF-18-4 フォークリフト専用アタッチメント4点吊り
製品情報
型番
LF-18-4
吊荷重
18TOIN
吊巾
1400~2000mm
塗装色
イエロー
図面